Dont €68.40/tonne d'éco-participation (barème applicable sur le poids du produit).
Paroi de douche fixe MANACOR pour douche à l'italienne en verre trempé, avec profil chromé.
C'est un écran de qualité incontestable et parfaitement adapté à une douche moderne, minimaliste et élégante.

Caractéristiques :
- Longueur : 70, 80, 90, 100, 110 et 120 cm
- Profil : aluminium anodisé
- Finition : brillante
- Écran : en verre trempé
- Épaisseur du matériau : 8 mm
- Hauteur de la paroi : 195 cm
- Réversible, peut être positionné avec l'ancre à droite ou à gauche
- Traitement anti-calcaire très durable pour un nettoyage rapide et efficace
- Stabilisateur : Barre stabilisatrice en acier inoxydable dont la longueur est réglable de 60 à 100 cm
- Sans profil supérieur ni inférieur
- Renforcement en PVC
- Eléments de fixation (poignées, charnières...) en acier inoxydable et zamak (alliage de zinc et d'aluminium qui combine solidité et esthétique)

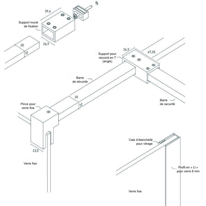
Plus d'information sur l'installation dans la Notice de montage.
A noter :
- Ce modèle existe avec des profils chromé, blanc mat, noir mat, ou avec un cadre au design noir mat quadrillé. Il existe également avec 2 barres de fixation finition chromé, blanc mat et noir mat.
- Dans le cas où la largeur de votre receveur excède 100 cm, une solution est de compléter votre achat avec une barre stabilisatrice dont la longueur est réalisée sur commande selon vos besoins : Barre stabilisatrice pour paroi de douche STANO + de 100 cm.
Accessoires correspondants à commander séparément :
- Receveurs de douche
- Colonnes de douche
- Robinetterie encastrée
Dessin technique présent dans les images produit.
| Largeur | entre 70 et 120 cm |
| Hauteur | 195 cm |
| Épaisseur | 8 mm |
| Matière paroi | Verre trempé |
| Couleur paroi | Transparent ou sérigraphié |
| Matière profil | Aluminium anodisé |
| Finition profil | Chromée |
| Forme | Rectangulaire |
| Garantie | 2 ans |
| Marque | ![]() |
Législation
Pour obtenir les coordonnées du fabricant ou de l'opérateur économique responsable, consultez ce fichier.
Bonus réparation, réparer avant de jeter !
Découvrez tous les détails concernant le fonctionnement du bonus réparation d'Ecomaison.
Eco-Information
La loi AGEC prévoit la mise en place d'un identifiant unique pour toutes les sociétés soumises aux principes de la REP (Responsabilité Elargie du Producteur).
LE MONDE DU BAIN est enregistrée au registre national des metteurs sur le marché des produits et matériaux du bâtiment sous le N°FR023625_04QZXU. Ce numéro garantit que la société, en adhérant à Ecomaison, se met en conformité avec les obligations réglementaires qui lui incombent en application de l'article L 541-10-1 10° du code de l'environnement. Pour plus d'informations et connaitre les barèmes applicables aux différents types de produits et équipements sanitaires pour salle de bain et WC consultez le site ecomaison.com

LE MONDE DU BAIN est enregistrée au registre national des metteurs sur le marché d'éléments d'ameublement sous le N° FR023625_10VUFN. Ce numéro garantit que la société, en adhérant à Ecomaison, se met en conformité avec les obligations réglementaires qui lui incombent en application de l'article L 541-10-1 10° du code de l'environnement.
Des coûts de traitement des déchets sont applicables, nommés ECO-PARTICIPATION, et répercutés à l'identique au prix du produit.

Information tri
Donnez une seconde vie à vos produits. Lorsque vous souhaitez vous en débarrasser, s'il est en bon état, vous pouvez le donner à une structure de l'économie sociale et solidaire ou le déposer à la déchetterie. Vous pouvez également faire reprendre votre meuble à l'achat d'un meuble neuf. Les produits collectés dans les bennes Ecomaison sont acheminés dans des centres de tri où les matériaux sont séparés par flux (bois, matelas, ferraille, plastique..) pour être envoyés en recyclage et servir à fabriquer d'autres produits.


Reprise de vos anciens meubles
Dans le cas d’un achat de mobilier sur notre site, et sous certaines conditions, Le Monde du Bain peut reprendre sans frais votre ancien meuble.
Le mobilier repris doit être du même type que le mobilier acheté. Tout produit qui ne serait pas équivalent au produit neuf acheté en termes de fonction et de volume ne pourra pas être pris en charge.
La demande doit être faite auprès des équipes Le Monde du Bain le jour de l’achat.
Il s’agit d’une reprise 1 pour 1.
Le lieu de reprise se fait au pied du camion, en bas du domicile. Aucun démontage ou dépose ne sera effectué par Le Monde du Bain, ni-même par le transporteur.
Le Monde du Bain organisera une reprise qui se fera au cours des 5 semaines suivant la date de livraison.
Les vasques de tout type (céramique, résine, ..) ne sont pas reprises.
Le mobilier dont le poids est inférieur à 20kg et dont l'arête dépliée est inférieure à 2 mètres dispose d’un régime spécifique.
Le Monde du Bain pourra refuser de reprendre votre ancien produit s’il présente un risque pour la santé et la sécurité du personnel (Art R 543-180-IV code de l’environnement).
Pour cela, Le Monde du Bain est en mesure de vous demander des photos du produit avant d’organiser la reprise.
Le produit devra être emballé et muni de protection pour éviter tout dommage durant le transport et ainsi pouvoir être réutilisé et/ou recycler.
Pour tout produit neuf livré en kit, le mobilier repris devra être démonté et fourni en kit de la même manière.
Les produits volumineux devront être disposés sur palette et cerclés à celle-ci pour permettre le chargement par le transporteur.
Tout mobilier repris ne peut être retourné au client a posteriori.
Toute reprise sera facturée au client si ce dernier ou cette dernière décide de retourner le mobilier neuf dans le délai de rétractation autorisé par la loi.
Recyclabilité des produits
Consultez la fiche de présentation de la recyclabilité des produits d'ameublement.
Bientôt disponible : consultez la fiche de présentation de la recyclabilité des produits du "bâtiment" qui correspondent à nos produits d'aménagement de la salle de bain.
Que faire de mes anciens produits
Pour savoir plus précisément que faire de vos anciens produits, vous pouvez consulter la page développée par l'agence gouvernementale de la transition écologique, l’ADEME : https://quefairedemesdechets.ademe.fr/
Produit en stock :
Livraison sous 10 à 15 jours, dès réception du paiement.
Produit en cours de réapprovisionnement :
La date indiquée correspond à la disponibilité du produit dans notre stock. Pour plus d'informations, nous consulter.
La livraison se fait toujours au pied du camion, par notre prestataire logistique spécialisé. La livraison se fait contre signature.
Vous devez impérativement contrôler l'état de votre colis avant de signer le bon de livraison (les réserves sur les emballages ne sont pas retenues).
Des frais de livraison peuvent s'appliquer, pour plus d'information consulter notre page Livraison.
Du 24.12.2025 au 02.01.2026, les délais de livraison peuvent être légèrement rallongés.
Délais de livraison
- produit en stock et disponibles :
La livraison est exprimée sous un nombre de jours ouvrés (week-end et jours fériés exclus), dès réception du paiement.
- produit en cours de réapprovisionnement :
La date indiquée correspond à la disponibilité du produit dans notre stock. En cas de modification d'un délai de réapprovisionnement, nous vous tenons informés au plus vite.
Dans le cas d'une commande de produits ayant des délais différents (même en réapprovisionnement), la totalité de la commande vous sera livrée selon le délai le plus long (sauf demande contraire auprès de notre service client).
Livraisons en France métropolitaine :
Livraison OFFERTE pour toute commande de plus de 700€
Commandes de moins de 700€ :
Les frais de livraison sont calculés en fonction du poids total des produits de la commande :
| Poids de la commande | Frais de livraison France métropolitaine |
| Entre 0 et 1 kg | 9€ |
| Entre 1 et 10 kg | 19€ |
| Entre 10 et 20 kg | 29€ |
| Entre 20 et 50 kg | 39€ |
| Entre 50 et 100 kg | 49€ |
| Au-delà de 100 kg | 99€ |
Forfait stockage baignoire :
Dès la validation de votre commande, nous pouvons retenir la livraison de votre baignoire durant un mois (lorsque celle-ci est en stock). Si toutefois vos travaux prennent plus de temps et que vous ne souhaitez pas réceptionner votre baignoire avant que tout ne soit terminé, nous vous proposons de garder votre baignoire en stock, même durant plusieurs mois, pour 50€ par mois.
Livraisons en Corse :
Nous sommes en mesure de livrer tous nos produits en Corse, mais les frais de livraison sont spécifiques : merci de nous contacter avant de confirmer votre commande pour obtenir une confirmation du montant des frais de livraison.
Livraisons en Belgique et Luxembourg *
:
Tous nos produits sont livrables en Belgique et Luxembourg, *SAUF contre-indication spécifiée en début de description produit
Votre commande est livrée en bas de chez vous (ou devant chez vous), au pied du camion, par notre prestataire logistique spécialisé. Les frais de livraison sont calculés en fonction du poids total des produits de la commande et vous sont confirmés lors de la validation de votre commande sur notre site.
| Poids de la commande | Frais de livraison |
| Entre 0 et 0.1 kg | 9€ |
| Entre 0.1 et 1 kg | 19€ |
| Entre 1 et 10 kg | 29€ |
| Entre 10 et 20 kg | 39€ |
| Entre 20 et 50 kg | 49€ |
| Entre 50 et 100 kg | 69€ |
| Au-delà de 100 kg | 99€ |
Précautions de livraison :
Toute remise doit être signée en présence du conducteur. En cas de dépose devant le domicile sans autorisation écrite préalable de Le Monde du Bain, aucune réclamation ne pourrait être acceptée.
Il faut impérativement ouvrir et inspecter soigneusement votre colis pour vérifier qu'il n'a pas subi de dégâts lors du transport.
Veuillez vérifier le contenu de vos colis avant de signer le récépissé. Sans réserves émises de votre part, aucun recours ne sera possible auprès du transporteur.
- Dans tous les cas, notez précisément ce que vous constatez sur le récépissé. Les mentions « sous réserve de déballage » et « emballage en bon état » ne sont pas des mentions reconnues, ni par notre société ni par la société de transport.
- Si votre colis a été endommagé, refusez-le et indiquez « refus pour avarie » sur le bordereau de livraison. Les réserves doivent être précises et caractérisées afin de faire prévaloir vos droits auprès de la société de livraison (ex: "vasque cassée").
Aucune réclamation ne pourra être faite si cette procédure n'est pas suivie.
Pour plus d'informations, veuillez consulter nos CGV.